Problem mit eFH im 4-Türer

Alles was unter Strom steht
Antworten
Benutzeravatar
F&I-GTDoettinger
Beiträge: 195
Registriert: 08.03.2015, 10:52
Wohnort: Lkr Ravensburg
Kontaktdaten:

Problem mit eFH im 4-Türer

Beitrag von F&I-GTDoettinger »

Mich plagt seit letztem Jahr, dass mein hinterer rechter Fensterheber nur noch mit dem hinteren Schalter hoch und runter läuft. Mit dem vorderen Schalter macht der keinen Mucks. Normalerweise sieht man an der Beleuchtung bei den anderen Schaltern ein minimales Flackern der Beleuchtung wenn die Fensterheber betätigt werden. Bei dem hinteren rechten ist das nicht zu beobachten.
Habe heute mal hinten alles soweit zerlegt, da mein Gedanke war, dass in der Durchführung ein Kabel gebrochen sein könnte. Also kurz n Ersatz in die Tür eingebaut - selbes Problem nach wie vor. Am Schalter liegt das ganze auch nicht, da ich schon n anderen Schalter zur Probe umgesteckt habe. Hat sonst jemand eine Idee was da sein könnte? ?(
Habe auch beim auseinander stecken der Kabel gesehen, dass ein Stecker schon etwas oxidiert war. Eventuell zu große Kontaktwiderstände? Oder vllt mal den Motor zerlegen da schwergängig? Habe allerdings nicht das Gefühl, dass dieser schwergängig wäre. Denn wenn ich mit dem hinteren Schalter betätige, dann läuft der echt problemlos.
Mein jetziges Multimeter hat leider den Geist aufgegeben, sodass ich net messen konnte. Werde da mal ein neues bestellen.
Benutzeravatar
schmidt-christian
Administrator
Beiträge: 194
Registriert: 05.03.2015, 09:10
Wohnort: Nürnberg / Mendorferbuch
Kontaktdaten:

Re: Problem mit eFH im 4-Türer

Beitrag von schmidt-christian »

Hi,

also am Motor wirds definitiv nicht liegen, wenn sich das Fenster mit dem hinteren Schalter einwandfrei bewegen lässt.
Hast du denn schon mal geguckt, bevor das Multimeter den Geist aufgegeben hat, ob du vorne am Schalter 2x Strom anliegen hast? Denn einmal wird der Strom ja für hinten durchgeschleift und einmal für den Heber verwendet. Vielleicht hast ja nen Kabelbruch in dem einen Stromleiter, der den vorderen Schalter betätigen lässt, also entweder vorm oder nachm Schalter. Kannst ja auch mit ner Birne und 2 Stück Kabel testen ;)
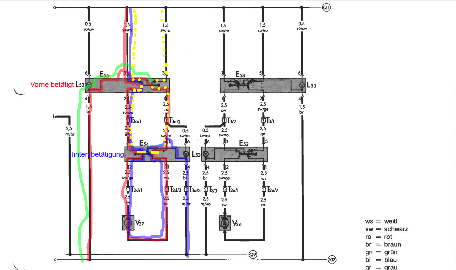
Ich häng dir mal den Stromlaufplan mit an, dann kannst die richtigen Klemmen prüfen.
Stromkreis hinten rechts.PNG
Gruß Christian
Benutzeravatar
schmidt-christian
Administrator
Beiträge: 194
Registriert: 05.03.2015, 09:10
Wohnort: Nürnberg / Mendorferbuch
Kontaktdaten:

Re: Problem mit eFH im 4-Türer

Beitrag von schmidt-christian »

Habs mir grad nochmal angeguckt, schau dir mal zuerst die Masseverbindung des vorderen Schalters an! An der könnts höchstwahrscheinlich liegen. Denn der hintere Schalter hat ne eigene Masse und der Strom muss ja von beiden Seiten zur Verfügung stehen, falls das Fenster hinten nicht nur rauf oder runtergeht.

Gruß Christian
Benutzeravatar
Marc20vt
Administrator
Beiträge: 702
Registriert: 04.03.2015, 01:34
Kontaktdaten:

Re: Problem mit eFH im 4-Türer

Beitrag von Marc20vt »

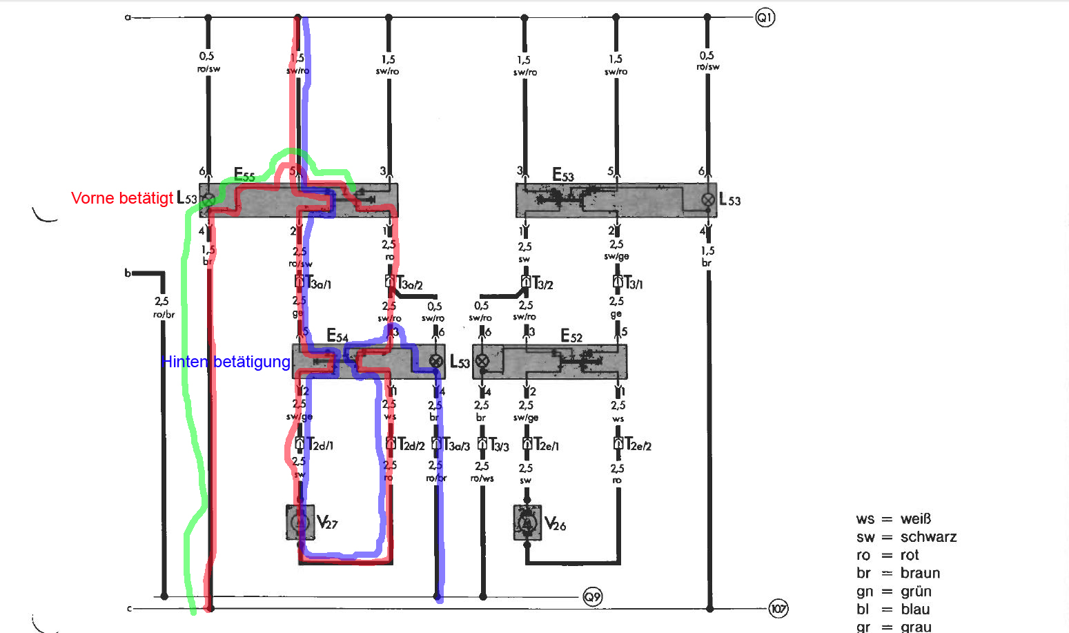
fensterheber.JPG
fensterheber fehler.jpg
Schau dir mal die Zeichnung an.
Rot ist der weg wo der Strom nimmt wenn wenn Vorne drückst
Blau wenn Hinten drückst.
Wenn hinten alles geht nur Vorne nicht kann der Fehler nur Im Grünen Bereich liegen.
Schalter Masse innen beschädigt
Masseleitung vorderer Schalter
Wenn dein Licht am Schalter aus wäre würde sie komplett fehlen
wenn es noch brennt eventuell schlechter kontakt an der Masse (Steckverbindung Schraube oder Kontakt vom Stecker)
Benutzeravatar
F&I-GTDoettinger
Beiträge: 195
Registriert: 08.03.2015, 10:52
Wohnort: Lkr Ravensburg
Kontaktdaten:

Re: Problem mit eFH im 4-Türer

Beitrag von F&I-GTDoettinger »

Mit dem alten Multi konnte ich net testen, da ich erst dachte, dass es der Schalter selber ist, also neue besorgt. Selbes Problem war danach immer noch und dann isses mir zu kalt geworden. Jetzt passt es von den Temperaturen wieder. :lol:
Werde mir das mit den SLP mal zu Gemüte führen und das alles mal anschauen. Hoffe das es nur die Masse vorne ist. Ansonsten wirds ne längere Sucherei... :roll:
Benutzeravatar
schmidt-christian
Administrator
Beiträge: 194
Registriert: 05.03.2015, 09:10
Wohnort: Nürnberg / Mendorferbuch
Kontaktdaten:

Re: Problem mit eFH im 4-Türer

Beitrag von schmidt-christian »

Recht viel mehr kanns ja nicht sein. Schalter hast schon nen funktionierenden gewechselt und von hinten aus gehts ja. Also falls ne originale is und nix dran rumgepfuscht wurde, kanns nur an den paar Punkten liegen. ;)
Benutzeravatar
F&I-GTDoettinger
Beiträge: 195
Registriert: 08.03.2015, 10:52
Wohnort: Lkr Ravensburg
Kontaktdaten:

Re: Problem mit eFH im 4-Türer

Beitrag von F&I-GTDoettinger »

Ich kann Dir versichern, dass der Kabelbaum tip top in Ordnung war, bis auf den einen Pin für Zündungsplus der abgezwickt war. Den hat man aber als Golffahrer immer daheim... :D
Wie ich vorhin geschrieben habe, werde ich mal den Heber ausbauen, zerlegen und anständig fetten, dass habe ich beim linken schon gemacht kurz nachm Einbau, da der richtig schwer lief. ;)
Benutzeravatar
F&I-GTDoettinger
Beiträge: 195
Registriert: 08.03.2015, 10:52
Wohnort: Lkr Ravensburg
Kontaktdaten:

Re: Problem mit eFH im 4-Türer

Beitrag von F&I-GTDoettinger »

Danke Euch beiden für die Unterstützung. Es war letztendlich wie in diesem Post beschrieben, der hintere Schalter.
Habe mein altes Multi doch noch reaktivieren können bzw das Messkabel hielt heute noch. Habe vorne angefangen zu messen, Strom war da beim rauf und runter lassen. Nach hinten gegangen und dann kontrolliert, Strom war am Schalter beim rauf und runter lassen, nur nach dem Schalter war alles tot. Kein Strom zwischen dem Schalter und dem Motor wenn der vordere Schalter betätigt wurde. :?
Also n anderen Schalter geschnappt und siehe da der Motor läuft. Den Heber habe ich trotzdem ausgebaut und mit nach Hause genommen und werde den mal zerlegen und fetten. Dann sollte es kein Theater mehr geben, zumindest so schnell nicht... :lol:
Benutzeravatar
schmidt-christian
Administrator
Beiträge: 194
Registriert: 05.03.2015, 09:10
Wohnort: Nürnberg / Mendorferbuch
Kontaktdaten:

Re: Problem mit eFH im 4-Türer

Beitrag von schmidt-christian »

Ah ok, damit hätt ich jetzt nicht gerechnet, aber solangs wieder geht, is ja alles tutti frutti :D
Benutzeravatar
Marc20vt
Administrator
Beiträge: 702
Registriert: 04.03.2015, 01:34
Kontaktdaten:

Re: Problem mit eFH im 4-Türer

Beitrag von Marc20vt »

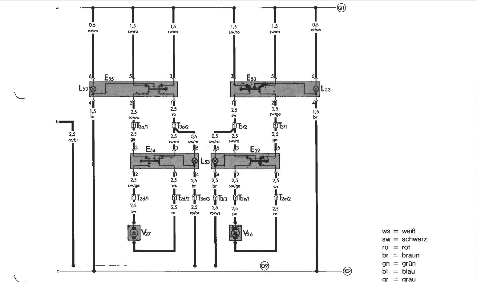
fensterheber fehle2r.jpg
Also das ja mal wieder doof dann waren 2 kontakte im schalter gleichzeitig kaputt. aber wenn man den Schalter betätigt gehn sie wieder. doofer zufall
Benutzeravatar
schmidt-christian
Administrator
Beiträge: 194
Registriert: 05.03.2015, 09:10
Wohnort: Nürnberg / Mendorferbuch
Kontaktdaten:

Re: Problem mit eFH im 4-Türer

Beitrag von schmidt-christian »

ja des is echt a komischer Zufall.
Benutzeravatar
F&I-GTDoettinger
Beiträge: 195
Registriert: 08.03.2015, 10:52
Wohnort: Lkr Ravensburg
Kontaktdaten:

Re: Problem mit eFH im 4-Türer

Beitrag von F&I-GTDoettinger »

Marc Du bist echt grandios!
Wie ein anderer auf MT geschrieben hatte, ist die Schaltung der EFH im 2er totale Grütze, weshalb er hingegangen ist und die Elekrik durch die Elektrik mit Steuergerät vom Seat ersetzt hat. Bin froh das es wieder funktioniert, falls mal wieder n Ausfall sein soll, check ich gleich den Schalter hinten bzw tausch ihn aus. Hab net umsonst noch ca 5 Stück liegen... :D
Antworten